Carnolès – Terrasse – Étage élevé – Proche gare 

1 Salle de douche

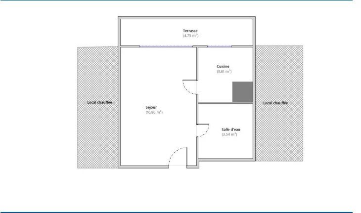
Studio

24.1 m² m² de surface

Roquebrune Cap Martin

170 000 

 

Carnolès – Terrasse – Étage élevé – Proche gare

Appartement à vendre à Roquebrune-Cap-Martin – Carnolès – Terrasse – Étage élevé – Proche gare – Idéal investissement locatif ou résidence principale

Situé à Roquebrune-Cap-Martin, dans le quartier recherché de Carnolès, à proximité immédiate de la gare SNCF, des commerces et des commodités, cet appartement en étage élevé constitue une opportunité rare sur le secteur.

L’appartement bénéficie d’une exposition sud-est offrant une belle luminosité tout au long de la journée. La terrasse permet de profiter d’un extérieur agréable, un véritable atout pour un appartement sur Carnolès proche centre-ville.

En bon état général, le logement présente un diagnostic de performance énergétique classé C, critère devenu essentiel pour un achat immobilier ou un investissement locatif pérenne sur la Côte d’Azur.

Le bien est actuellement loué en bail meublé à 800 € charges comprises. Le congé a été délivré : l’appartement pourra être vendu libre de toute occupation pour un acquéreur souhaitant y habiter. Pour un investisseur, la locataire peut rester en place. Sérieuse, fiable et ponctuelle dans ses règlements, elle entretient parfaitement le logement.

Le loyer pourra être légèrement revalorisé lors d’une nouvelle mise en location, offrant un potentiel d’optimisation intéressant pour un investissement locatif à Roquebrune-Cap-Martin.

Proximité gare Carnolès, accès rapide Monaco, Menton et Nice, commerces à pied, secteur dynamique : un emplacement stratégique aussi bien pour un premier achat que pour un investissement sécurisé.

Photos du bien

Réglementation

  • Énergie - Référence Ademe - Numéro de DPE 2606E0435424N

  • Énergie - Consommation conventionnelle 148 kWhEP/m².an (C)

  • Énergie - Consommation finale 130 kWhEF/m².an (c)

  • Énergie - Estimation des émissions 26 kg CO2/m².an (c)

  • Énergie - Montant bas estimé des dépenses annuelles pour un usage standard 320 € / an

  • Énergie - Montant haut estimé des dépenses annuelles pour un usage standard 480 € / an

  • Énergie - Année de référence des prix de l'énergie 2023

  • Loi Carrez 24,01m²

  • État des Risques et Pollutions (ERP) Réalisé

  • Termites Réalisé

  • Amiante Réalisé

  • Plomb Non applicable

  • Électricité Réalisé

  • Taxe foncière 654 € / an

Prestations

  • Fenêtres coulissantes

  • Ascenseur.

    Informations complémentaires

  • Localisation ROQUEBRUNE CAP MARTIN

  • Pièces / Chambres STUDIO

  • Surface 24.1 m²

  • Standing Normal

  • État Bon état

  • Exposition Sud-Est

  • Vue Ville

  • Disponibilité Libre

  • Eaux usées Tout à l'égout

  • Eau chaude Collective

  • Chauffage Collectif

  • Étage 6

  • Niveaux 8

  • Charges 360 €/trimestre

Surface

  • 1 Séjour 16.86 m²

  • 1 Salle de douche 3.54 m²

  • 1 Cuisine 3.61 m²

  • 1 Terrasse 4.75 m²

beaulieu sur mer

ÊTRE CONTACTÉ

ÊTRE CONTACTÉ

Précédent
Précédent

MAISON PEILLE • LA GRAVE DE PEILLE

Suivant
Suivant

Quartier Borrigo | 2 pièces